Estepona

Te koop Middle Floor Apartment Costa Del Sol Estepona € 759.000,-

Ref.no: RSOR5186287
Price: € 759.000,-

1-7980e48d732b6fc85c14b43b94d2aa54.jpg

Te koop Middle Floor Apartment Costa Del Sol Estepona € 759.000,-

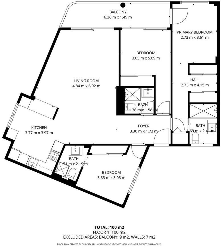
Bedrooms3
Salles de bains3
Living area132m²
Poolyes
Gardenno
Parkingyes
Built year2024
Setting: Town, Close To Port, Close To Sea, Close To Schools, Close To Marina
Orientation: South
Condition: Excellent
Pool: Communal
Climate Control: Central Heating
Views: Street
Features: Covered Terrace, Lift, Fitted Wardrobes, Near Transport, Private Terrace, Storage Room, Ensuite Bathroom
Kitchen: Fully Fitted
Security: Entry Phone
Parking: Garage
Ref.no: RSOR5186287
Price: € 759.000,-

Plus d'information ›››
Te koop Middle Floor Apartment Costa Del Sol Estepona € 759.000,-

Modern Apartment in the Heart of Estepona!

Located right in the vibrant center of Estepona, just steps away from everything this charming coastal town has to offer and within easy reach of the beautiful promenade and the Mediterranean Sea, you’ll find this exclusive home in the contemporary development Ventura Estepona. The building is only a couple of years old and showcases modern architecture with elegant, high-quality finishes.

Located on the first floor, the apartment features a bright south-facing terrace overlooking the street — ideal for watching the city come to life and enjoying the authentic feel of Estepona’s everyday energy.The open-plan layout connects the spacious living room with the modern kitchen, offering a seamless flow and a welcoming social space. With 3 bedrooms and 3 bathrooms, there is plenty of room for family and guests, all designed with a sense of style and comfort.

Ventura Estepona offers a perfect balance between city life and relaxation, with access to a communal pool, garage and storage room for your convenience. Here you can live modern and comfortably with restaurants, shops, culture and beaches at your doorstep, while still having your very own oasis at the heart of town.

This is a home that truly combines the best of both worlds – the vibrant lifestyle of the city and the relaxed rhythm of the Mediterranean coast.

Alternatives

BOHAAP4805_25562_V1_619D.jpg

Te koop Appartement Costa Del Sol Fuengirola € 695.000,-

Price € 695.000,-
Plus d'information
BOHACP1145_2159_V1_73B3.jpg

Te koop Appartement Costa Del Sol Estepona € 845.000,-

Price € 845.000,-
Plus d'information
BOHACP1425_4770_V1_3FB1.jpg

Te koop Appartement-Duplex Costa Del Sol Marbella East € 740.000,-

Price € 740.000,-
Plus d'information
BOHAAP4762_24524_V1_E777.jpg

Te koop Appartement Costa Del Sol Fuengirola € 695.000,-

Price € 695.000,-
Plus d'information
Disclaimer | Links
Casadelmar %lng_cookie_notice% %lng_close%
x