Calahonda

Te koop Middle Floor Apartment Costa Del Sol Calahonda € 429.000,-

Ref.no: RSOR5252902
Price: € 429.000,-

1-7980e48d732b6fc85c14b43b94d2aa54.jpg

Te koop Middle Floor Apartment Costa Del Sol Calahonda € 429.000,-

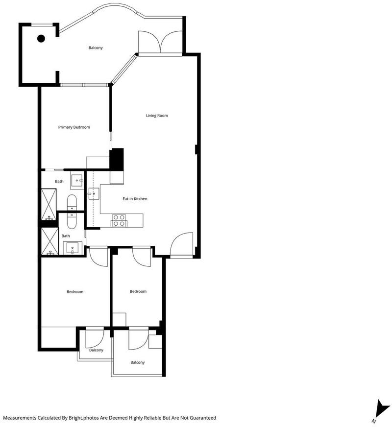
Bedrooms3
Salles de bains2
Living area96m²
Poolyes
Gardenyes
Parkingyes
Built year1992
Setting: Close To Golf
Orientation: South East
Condition: Excellent, Recently Renovated
Pool: Communal
Climate Control: Air Conditioning, U/F Heating
Views: Sea, Garden, Pool
Features: Covered Terrace, Near Transport
Kitchen: Fully Fitted
Garden: Communal
Security: Gated Complex
Parking: Communal
Ref.no: RSOR5252902
Price: € 429.000,-

Plus d'information ›››
Te koop Middle Floor Apartment Costa Del Sol Calahonda € 429.000,-

Welcome to this bright and renovated 3 bedroom apartment in Calahonda with beautiful views!

Discover this beautifully renovated 3 bedroom, 2 bathroom home in the heart of Calahonda, offering a perfect blend of comfort, style, and coastal charm. The property is filled with natural light throughout, creating an airy and inviting atmosphere from the moment you walk in.

Enjoy a spacious open-plan living area that flows seamlessly onto a sunny terrace with lovely open views—ideal for relaxing or entertaining. The modern kitchen and updated bathrooms add a fresh, contemporary touch.

Located within a well-maintained community featuring a swimming pool and communal parking, this property is a fantastic option for permanent living, a holiday home, or investment.

A bright, move-in-ready gem in one of Calahonda’s most sought-after areas—don’t miss it!

Alternatives

1-7980e48d732b6fc85c14b43b94d2aa54.jpg

Te koop Gelijkvloers appartement Costa Del Sol Benahavís € 430.000,-

Price € 430.000,-
Plus d'information
1-7980e48d732b6fc85c14b43b94d2aa54.jpg

Te koop Middle Floor Apartment Costa Del Sol Mijas Costa € 390.000,-

Price € 390.000,-
Plus d'information
1-7980e48d732b6fc85c14b43b94d2aa54.jpg

Te koop Middle Floor Apartment Costa Del Sol San Pedro De Alcántara € 450.000,-

Price € 450.000,-
Plus d'information
1-7980e48d732b6fc85c14b43b94d2aa54.jpg

Te koop Middle Floor Apartment Costa Del Sol Manilva € 329.000,-

Price € 329.000,-
Plus d'information
Disclaimer | Links
Casadelmar %lng_cookie_notice% %lng_close%
x