San Pedro De Alcántara

Te koop Herenhuis Costa Del Sol San Pedro De Alcántara € 695.000,-

Ref.no: RSOR5357137
Price: € 695.000,-

1-7980e48d732b6fc85c14b43b94d2aa54.jpg

Te koop Herenhuis Costa Del Sol San Pedro De Alcántara € 695.000,-

Bedrooms5
Salles de bains3
Superficie du terrain350m²
Living area316m²
Poolno
Gardenyes
Parkingno
Setting: Close To Golf, Close To Shops, Close To Town, Close To Schools
Views: Panoramic, Urban
Features: Near Transport, Private Terrace, Solarium
Ref.no: RSOR5357137
Price: € 695.000,-

Plus d'information ›››
Te koop Herenhuis Costa Del Sol San Pedro De Alcántara € 695.000,-

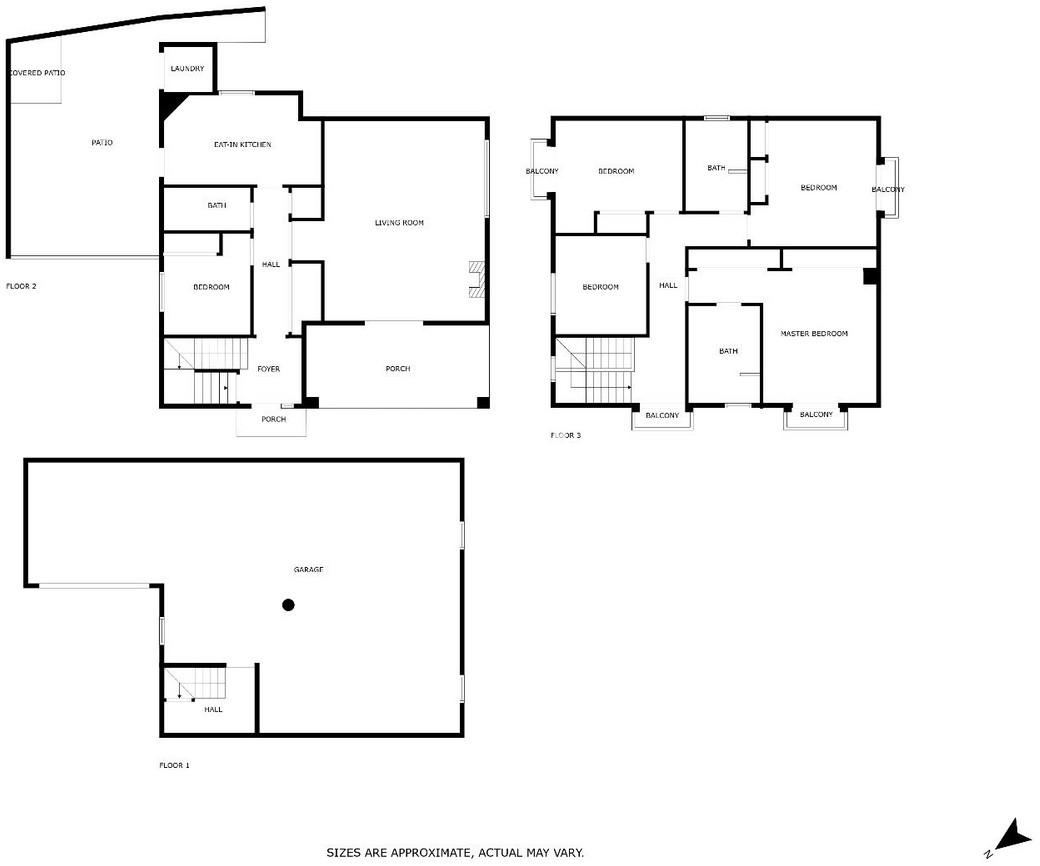
We present this detached single-family house with 316 m2 built on a plot of 350 m2.Ground floor has 1 bedroom, bathroom, fully equipped kitchen in wood and marble, large living room with fireplace and two rooms, with access to porch and front garden.Upstairs there are 4 bedrooms and two bathrooms. The spacious master bedroom with en suite bathroom and two built-in wardrobes with solid wood doors.Finally, in the basement there is a garage and 150 m2 of open space with the possibility of equipping it with a gymnasium, recreation room, cinema etc. or even the option of making a flat with independent entrance from the street.It is worth mentioning its exterior area with garden with the possibility of building a swimming pool and a luminous barbecue area fully equipped.Close to shops and just a few minutes from golf courses and San Pedro de Alcántara.I will be delighted to attend you in the visit that we will do, Jose Gaitan StrandProperties.

Alternatives

BOHAAP4845_26340_V1_8876.jpg

Te koop Herenhuis Costa Del Sol Fuengirola € 619.000,-

Price € 619.000,-
Plus d'information
BOHAAP4770_24773_V1_CA53.jpg

Te koop Herenhuis Costa Del Sol La Cala De Mijas € 753.000,-

Price € 753.000,-
Plus d'information
BOHACP1364_4240_V1_55FE.jpg

Te koop Herenhuis Costa Del Sol Estepona € 730.000,-

Price € 730.000,-
Plus d'information
BOHACP1401_4542_V1_16F9.jpg

Te koop Herenhuis Costa Del Sol La Cala Golf € 641.000,-

Price € 641.000,-
Plus d'information
Disclaimer | Links
Casadelmar %lng_cookie_notice% %lng_close%
x